Nachhaltiges Zukunftslabor
Wiki Village in Paris von AAAA + DVVD Architectes
Hochhäuser der Nachkriegszeit umgeben das Wiki Village im Pariser 20. Arrondissement © Nicolas Grosmond
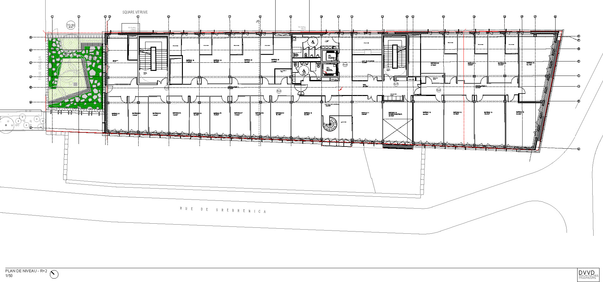
Rund 7500 m² Flächen für Start-up-Firmen sowie Werkstätten, dazu etwa 2000 m² Freiflächen für die örtliche Bevölkerung: Das Wiki Village soll künftig für mehr wirtschaftliche und soziale Dynamik im Osten von Paris sorgen. Der Neubau steht wenig südlich des Friedhofs Père Lachaise und ist von Hochhäusern der Nachkriegszeit umgeben.


Nicht überall sind die Innenräume so weitläufig wie hier – aber sie werden stets von Stützen und Unterzügen aus Holz getragen. © Nicolas Grosmond
Modulare Holzfassade
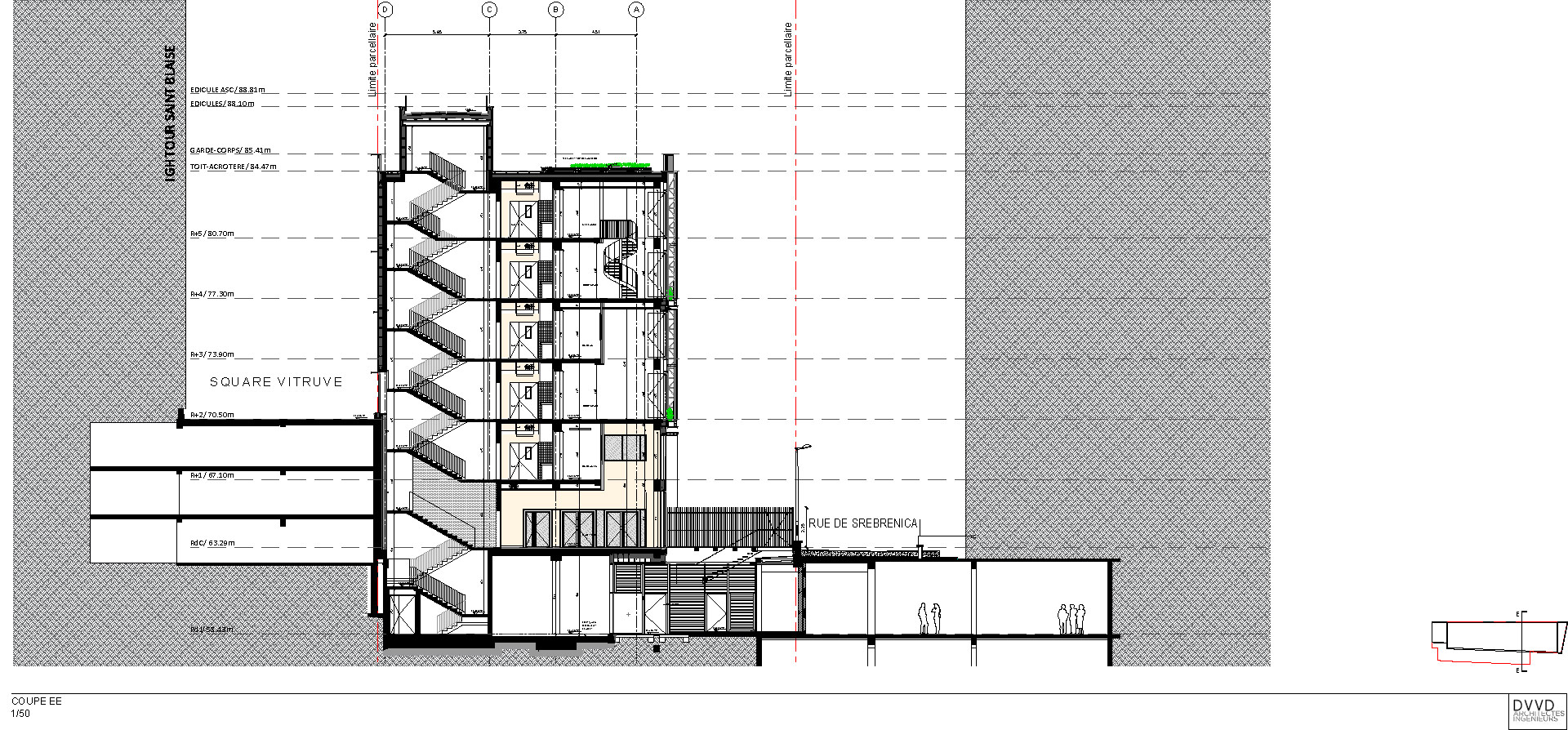
Bauherr war der Immobilienentwickler REI Habitat, der sich auf Holzbau spezialisiert hat. Auch für den sechsgeschossigen Neubau kam eine Holz-Hybridstruktur zum Tragen: Stützen und Unterzüge aus Holz tragen die Geschossdecken, die Fassaden bestehen ebenfalls aus Holz, das zu 55 % aus französischen Wäldern stammt. Ein regelmäßiges Raster aus vorgefertigten, abwechselnd geschlossenen und verglasten Fassadenelementen umgibt das Gebäude. Nur in den unteren beiden Geschossen, wo die öffentlich zugänglichen Funktionen untergebracht sind, ist die Gebäudefront großzügig verglast. Das Gleiche gilt für den Eingangsbereich, wo die Architekten mehrere zweigeschossige Bereiche übereinander gestapelt haben, um die vertikale Durchlässigkeit des Gebäudes zu steigern.


Eine regelmäßige Abfolge geschlossener und verglaster Fassadenflächen überzieht das Gebäude. Einzige Ausnahme: Im Eingangsbereich ist die innere Gliederung in zweigeschossige Räume auch von außen ablesbar. © Nicolas Grosmond
Öffentlicher Dachgarten
Auf eine Klimatisierung der Büroflächen verzichtete der Bauherr, um Energie und Kosten zu sparen. Vor allem die Dachfläche steht künftig auch der örtlichen Bevölkerung zur Verfügung. Hier wurde ein 450 m² großer Dachgarten angelegt, der einschließlich einer Pergola über der Dachterrasse künftig Schülerinnen und Anwohnern als Lehrgarten zur Verfügung stehen soll.
Architektur: AAA & DVVD Architectes
Bauherr: REI Habitat, ETIC
Standort: Rue de Srebrenica, 75020 Paris (FR)
Tragwerksplanung: DVVD Ingénieurs
Akustik: Theatre Project
TGA-Planung: Overdive
Holzbauunternehmen: Arbonis, Isore, Billet, Hermione
















