Abriss verhindert
Umnutzung Felix Platter Spital in Basel
Der 100 m lange und 35 m hohe Betonriegel wurde nach Plänen der Architekten Fritz Rickenbacher und Walter Baumann errichtet. © Ariel Huber
Die Arbeitsgemeinschaft Müller Sigrist/Rapp hat das ehemalige Spital in ein Wohnhaus mit 134 Einheiten verwandelt und so den Abriss der markanten Hochhausscheibe aus den 1960er-Jahren verhindert. Das Gebäude im Basler Stadtteil Inselin wurde nach Plänen der Architekten Fritz Rickenbacher und Walter Baumann errichtet.


An den Stirnseiten kragen die Decken zu großen Terrassen aus. © Jakob Schoof
Reduzierter Schutzumfang
Das Krankenhaus den Anforderungen einer zeitgemäßen Klinik anzupassen wäre wirtschaftlich nicht machbar gewesen, darum wurde das charaktervolle Gebäude der Nachkriegsmoderne aus dem Inventar schützenswerter Bauten entlassen und zum Abriss freigegeben. Als eine Machbarkeitsstudie zeigte, dass Brandschutz, Energieeffizienz und Erdbebensicherheit, trotz der typischen Klinik-Struktur und der tiefen Grundrisse, zu Wohnzwecken ertüchtigt werden können, entschloss sich der Basler Regierungsrat es mit reduziertem Schutzumfang in die Denkmalliste einzutragen.
Drei feingliedrige Fassaden
Drei unterschiedliche, feingliedrige Gebäudehüllen prägen die Außenwirkung des Spitals: An der Nordseite ein Betongitter, das etwas außermittig von einer Aluminiumbandfassade über die gesamte Höhe unterbrochen wird. Die Südseite bekleidet eine Metallfassade mit akkordeonartig gefalteten Glasflächen. Die Planenden ließen die Betongitterelemente reinigen und stellenweise instand setzen. Die Aluminiumfassade an der Nordseite wurde unter detaillierten Vorgaben der Denkmalschutzbehörde vollständig erneuert. Die Südansicht bewahrte das Architektenteam, indem es eine zweite Pfosten-Riegelkonstruktion als innere, thermische Hülle hinter die Bestandsfassade setzte. So entsteht im Raum zwischen den beiden Glaswänden, den Bewohnerinnen und Bewohner als Wintergarten nutzen, ein Klimapuffer.


Durch die freigelegte Tragstruktur und Tageslicht von beiden Seiten wirkt das Foyer offen und großzügig. © Ariel Huber
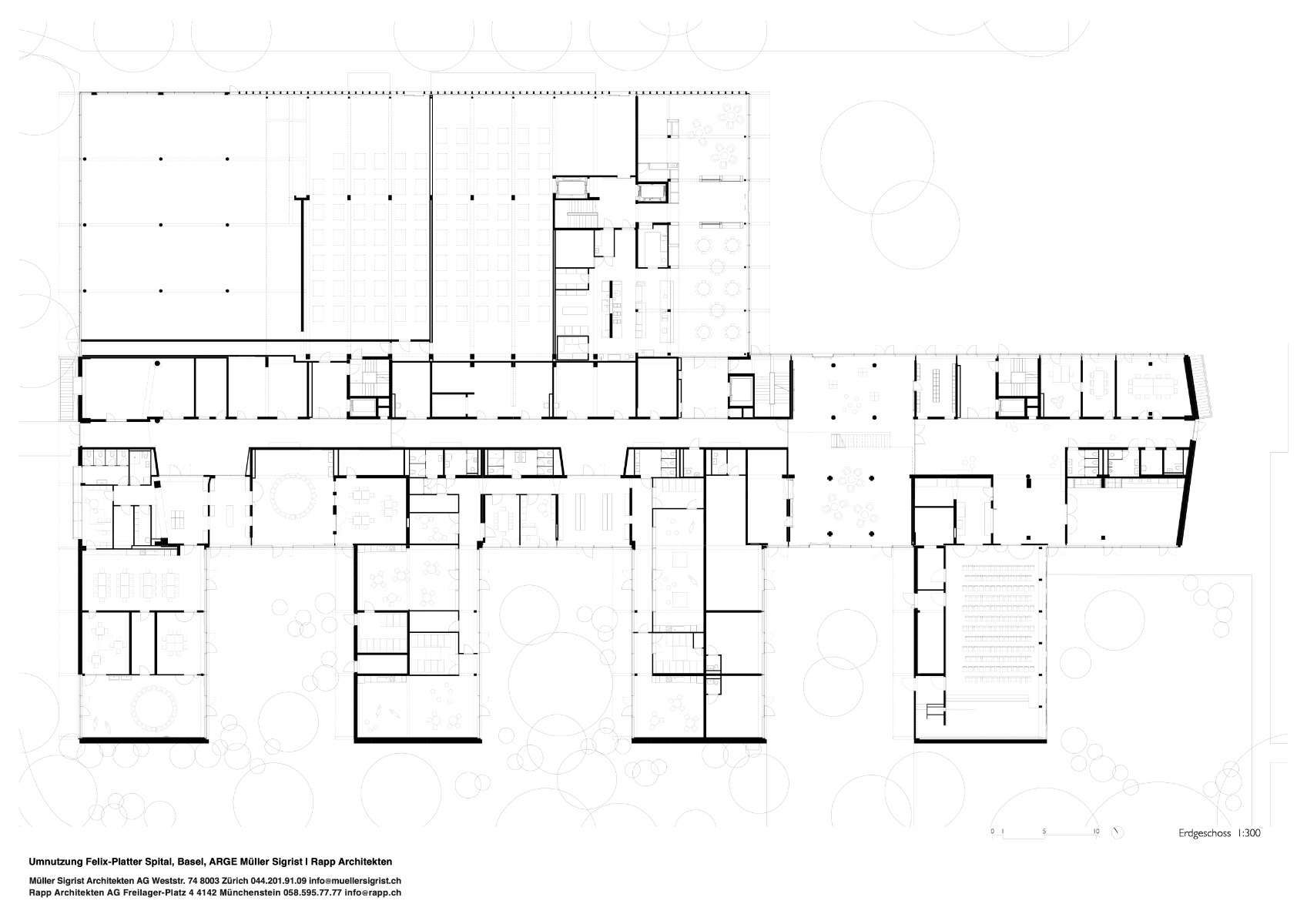
Erdgeschoss als Dreh- und Angelpunkt
Das Schiff – so wird der langgestreckte Riegel von den Quartiersbewohnern inzwischen genannt – ist das Zentrum des Viertels. Angebote zur Kinderbetreuung, Läden und Veranstaltungsräume sorgen für ein belebtes Erdgeschoss. Verglaste Zugänge auf beiden Seiten des großzügigen Foyers verbinden das Quartier mit dem öffentlichen Straßenraum. Kaskadenartig versetzte, gerade Treppenläufe und eine Rue Intérieure mit nachbarschaftlichen Begegnungszonen gliedern die breiten Klinikflure und führen Bewohnerinnen und Gäste quer durch das Haus bis hinauf auf die gemeinschaftliche Dachterrasse.


Gerade Treppenläufe und nachbarschaftliche Begegnungszonen gliedern die breiten Klinikflure. © Ariel Huber
Gute soziale Durchmischung
Ein breit gefächerter Wohnungsmix sorgt für eine gute Durchmischung. Von 1-Zimmer-Studentenapartments über 3,5-Zimmer-Maisonettewohnungen für Familien, anmietbare Gäste- und Jokerzimmer für die Genossenschaftsmitglieder, bis hin zur Co-Living- Gemeinschaft mit zwölf Wohneinheiten ist alles vertreten. Jede Wohnung ist individuell zugeschnitten, keine Einheit gleicht der anderen. Für eine gute soziale Durchmischung sorgt zudem ein durchdachtes Preismodell, bei dem die günstigeren Wohnungen in den unteren Geschossen über die eher hochpreisigen Einheiten der oberen Etagen subventioniert werden.
Mehr dazu in Detail 5.2024 und in unserer Datenbank Detail Inspiration.
Architektur: ARGE Müller Sigrist Architekten/Rapp
Bauherr: Baugenossenschaft wohnen & mehr
Standort: Basel (CH)
Tragwerksplanung: Dr. Lüchinger + Meyer, Bauingenieure
Landschaftsarchitektur: Lorenz Eugster Landschaftsarchitektur und Städtebau
Fassadenplanung: NM Fassadentechnik
Bauleitung: Rapp


























