Vom Viehstall zum Kunstatelier
Scheunenumbau von Gianni Botsford Architects
Die beiden sanierten Bauten sind an ihrer Hülle aus Wellfaserzement gut zu erkennen. Im Hintergrund ist das Gebäude eines anderen Eigentümers zu sehen, das von einem anderen Architekten mit gleicher Materialpalette saniert wurde. © James Eagle
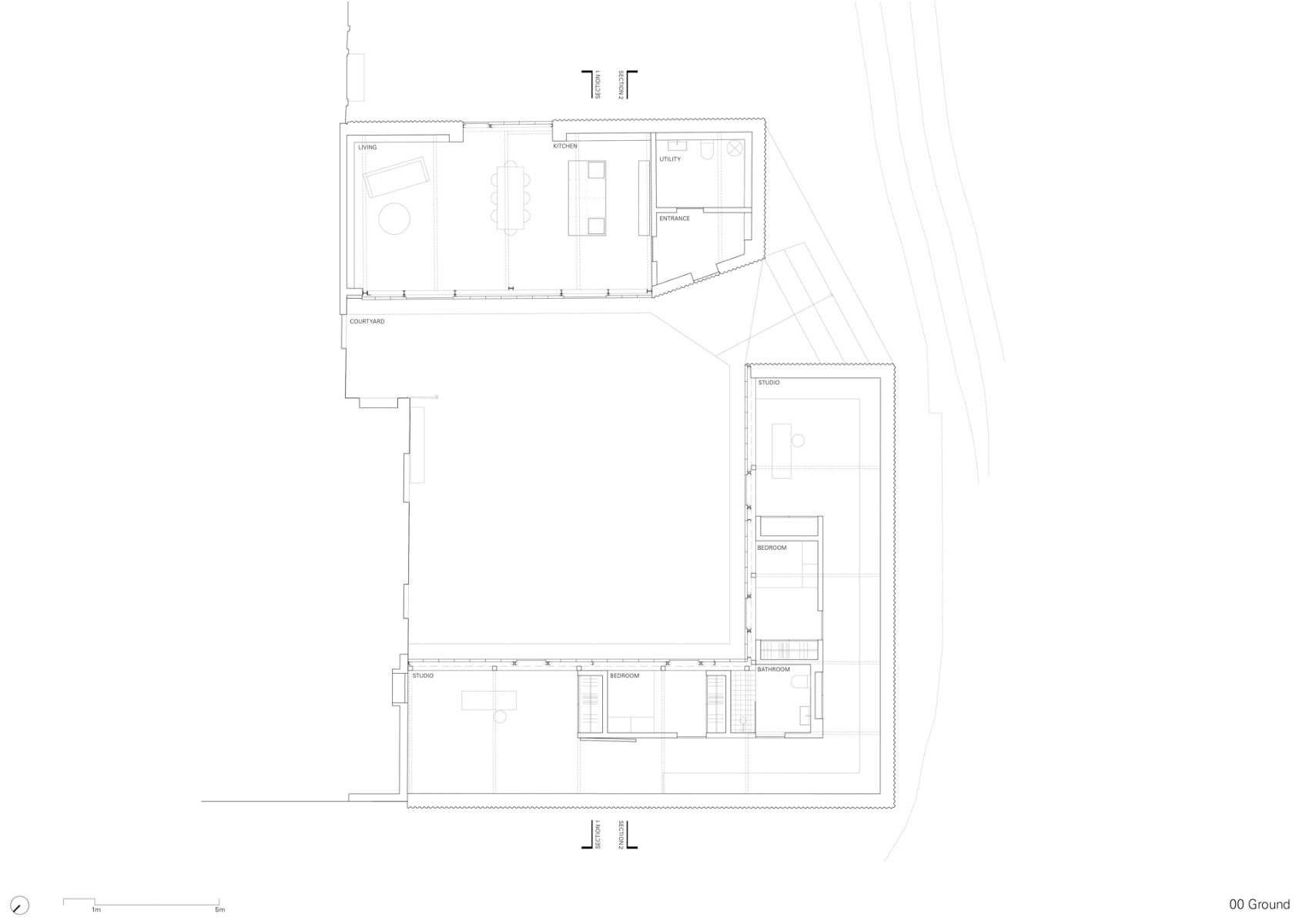
The Old Byre – die alte Scheune – nennen Gianni Botsford Architects ihr jüngstes Umbauprojekt auf der südenglischen Isle of Wight. Tatsächlich wurden die beiden Nebengebäude einer Farm in der Nähe der Küstenstadt West Coves bis vor wenigen Jahren noch zur Viehzucht genutzt. Nach ihrem Umbau sind dort Wohn- und Atelierräume für einen Künstler und seine Gäste entstanden.


Die Eingangsfassade aus Polycarbonat macht auf den ersten Blick einen abweisenden Eindruck. Sie flutet die Räume aber mit Tageslicht. © Schnepp Renou
Ein Bauernhof wird neu genutzt
Die beiden Gebäude gehören zu einem größeren Anwesen unweit außerhalb der Stadt. Umgeben ist es von Feldern, doch in geringer Entfernung beginnen bereits die Gewerbegebiete und Werften von West Cowes. Die Farm war schon vor einiger Zeit unter mehreren Eigentümern aufgeteilt worden, die sie teils zum Wohnen und teils als Lagergebäude nutzten. Zwei der Nebengebäude – eines aus dem 19. und eines aus dem 20. Jahrhundert – hatte der Künstler und Kunsttheoretiker Joseph Kohlmaier erworben, der an der London Metropolitan University lebt. Er wollte hier Wohnräume für sich und seine beiden Töchter einrichten, aber auch Zimmer für Gäste und „Artists in Residence“.


Auch das Stahltragwerk des jüngeren der beiden Gebäude blieb im Original erhalten. Lediglich an den Fassaden waren einige zusätzliche Profile notwendig. © Schnepp Renou
Neue Hülle unter altem Dachstuhl
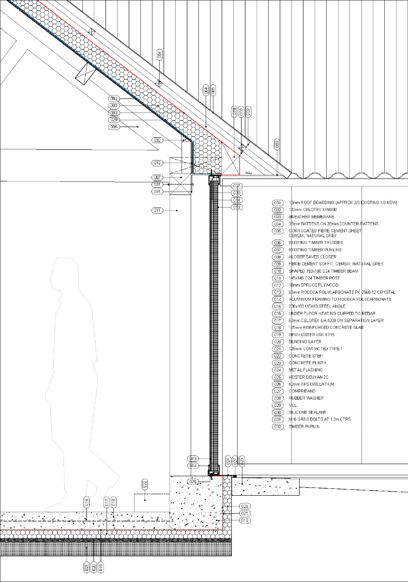
Es gelang Gianni Botsford und seinem Büro, die Tragstruktur der beiden Scheunen zu erhalten. Die Hülle indessen ist neu: Dach und Rückwand der Bauten sind in Faserzement-Welltafeln gehüllt, wie sie bei landwirtschaftlichen Bauten des Öfteren zu finden sind. Zum Innenhof erhielten die Gebäude Polycarbonatfassaden, die die Privatsphäre der Bewohner wahren und die Innenräume dennoch in helles Licht tauchen. Nur an den verglasten Eingangstüren sind Einblicke ins Innere des Gebäudes zu erhaschen. Laut Gianni Botsford sprachen eine Reihe von Gründen für die Materialwahl: Polycarbonat ist kostengünstig, blickdicht und doch transluzent und hat eine industrielle Ästhetik, die gut zum Wellfaserzement der Dächer und Wände passt.


Am Ende des L-förmigen Gebäudes sind zwei Künstlerateliers entstanden. © Schnepp Renou


Die Schlafzimmer zwischen ihnen sind nach dem „Haus im Haus“-Prinzip in das große Volumen eingestellt. © Schnepp Renou
Getrennte Bauvolumen
Bewusst entschieden sich die Architekten, die beiden Gebäude der „Old Byre“ getrennt zu lassen, obwohl die Nutzung dem eigentlich widerspricht: Eines der Gebäude enthält Küche, Bad und Wohnbereich, das andere zwei Studios mit je eigenem Schlafbereich und Gemeinschaftsbad. Dieses – ältere – Gebäude ist nach dem Prinzip des „Hauses im Haus“ strukturiert. Die beiden Schlafräume und der Sanitärbereich sind in kompakten Einbauten aus Holz untergebracht, die frei unter dem großen Dachstuhl stehen. Die beiden Eingänge zu den Studios lassen sich mit einfachen Türen ohne Beschläge und Griffe verschließen. Beheizt wird das Gebäude von einer Luftwärmepumpe, die Heizwärme wird über eine Fußbodenheizung im neu erstellten Fußbodenaufbau verteilt.
Architektur: Gianni Botsford Architects
Bauherr: Joseph Kohlmaier
Standort: Isle of Wight (GB)
Tragwerksplanung: Horne and Littlemore
Bauunternehmen: Imphouse



























