In steinerner Schale
Holzhaus hinter alten Werkstattmauern in Flandern
Innerhalb der Außenmauern der alten Schreinerei liegt das neue Holzhaus. © Stjin Bollaert
Sein Leben lang arbeitete der Großvater der jungen Auftraggeberin in der Schreinerei auf dem langgestreckten Grundstück im belgischen Drongen. Als sie und ihr Partner beschlossen, das Grundstück zu bebauen, wünschten sie sich Teile des ziemlich maroden Bestandsgebäudes zu erhalten.


Vom Bestandsgebäude blieben nur die Außenmauern stehen. © Stjin Bollaert
Außenmauern bleiben erhalten
Raamwerk ließ das Dach sowie die restlichen Decken und Innenwände des zweistöckigen Bestandsgebäudes abbrechen. Auch Fensterrahmen und Türen entfernten sie. Auf die bestehende Fundamentplatte setzten sie das neue Wohnhaus in Holzrahmenbauweise. Das Material dazu war bereits auf dem Bauplatz, denn es stammt größtenteils aus den Lagerbeständen der alten Schreinerei.
Reizvoller Zwischenraum
Ein Satteldach verbindet den neuen Baukörper mit der Bestandsstruktur. Fast wirkt es so, als würde das Dach über der gemauerten Außenwand schweben, denn die Sparren sind lediglich über dünne Dornen mit der Mauerkrone verbunden. Gewellte Polycarbonatplatten decken das Dach. Durch sie fällt das Sonnenlicht in die offenen Räume zwischen Bestandswand und Neubau.


Zwischen Neubau und Bestandswand entsteht ein reizvoller, halboffener Zwischenraum. © Stjin Bollaert
Lichteinfall nach Jahreszeit
Hinter der weiß geschlämmten Außenmauer spitzten die grün lasierten Sperrholzplatten der Neubaufassade hervor. Ihre Farbgebung ist eine Reminiszenz an die Werkstatt-Tore der früheren Werkstatt. Die Lage der Fenster bezieht sich auf die Öffnungen der äußeren Hülle, die je nach Jahreszeit den Lichteinfall lenken: Bei tief stehender Sonne im Winter erlauben sie dem Licht, direkt in die Räume zu fallen. Steht im Sommer die Sonne höher, wirken sie wie ein Brise-Soleil.


Die Fenster im Neubau beziehen sich auf die Öffnungen der Außenwand. © Stjin Bollaert
Geschützter Hof
Den angrenzenden Schuppen ließ das Planungsteam abdecken, der Dachstuhl blieb erhalten. Für die junge Familie entstand ein geschützter, begrünter Hof. Viel Eigenleistung, die aufgrund der einfachen Konstruktion möglich war, hielt die Baukosten niedrig.


Der abgedeckte Schuppen wird zum begrünten Innenhof. © Stjin Bollaert
Inspiriert von der früheren Nutzung
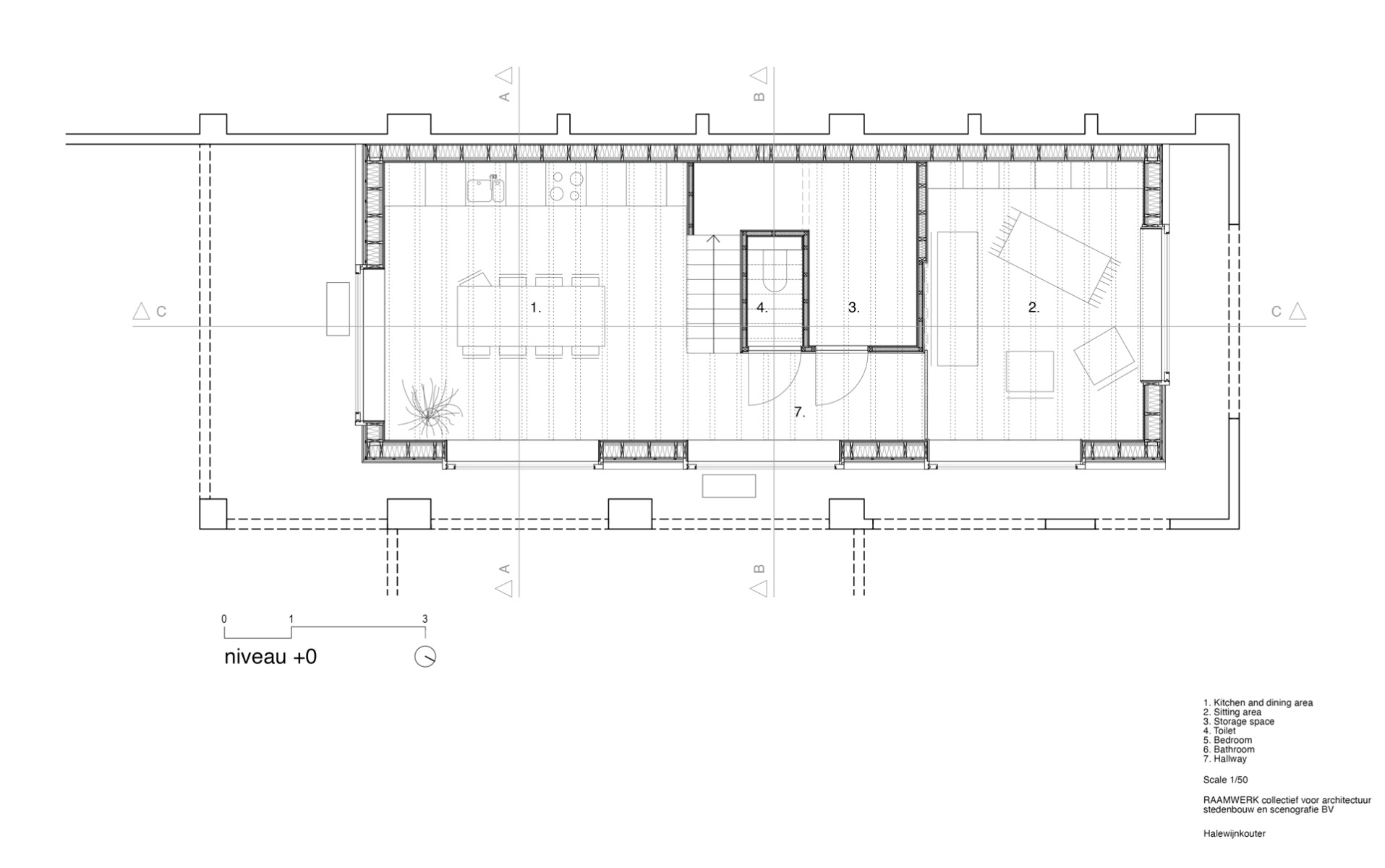
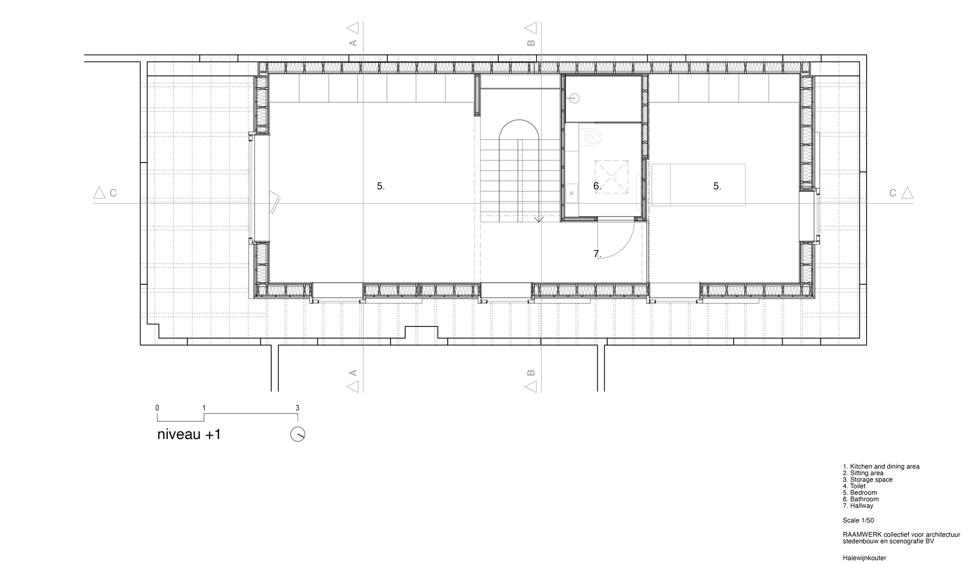
Der Grundriss ist schlicht. In der Gebäudemitte erschließt der Eingangsbereich mit Treppe und Versorgungskern jeweils zwei Räume: Küche und Wohnbereich im Erdgeschoss sowie zwei Schlafzimmer im Obergeschoss. Die Wohnfläche von 100 m² lässt sich bei Bedarf in die gedeckten Außenbereiche erweitern. Die Materialien sind inspiriert von der früheren Nutzung. Mit sichtbaren hölzernen Deckenbalken, Holzverkleidungen in den Laibungen und dunkelgrauem Gussasphalt, der vom alten Werkstattboden inspiriert ist, erinnert die Materialwahl an die frühere Nutzung.
Mehr dazu in Detail 5.2024 und in unserer Datenbank Detail Inspiration.
Architektur: Raamwerk
Bauherr: Emiel & Charline
Standort: Drongen (BE)
Tragwerksplanung: Fraeye Stabiliteit























