Luxushotel am Chiemsee
Chiemgauhof Lakeside Retreat von Matteo Thun
Die drei Holzgebäude erstrecken sich entlang des Sees und sind durch Terrassen und verglaste Elemente verbunden. © Elias Hassos
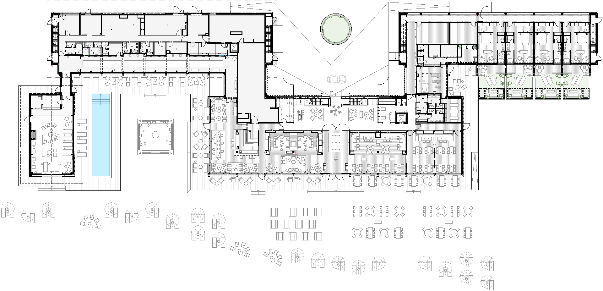
In Übersee am Südufer des Chiemsees hat im Februar 2025 das 5-Sterne-Plus-Hotel Chiemgauhof Lakeside Retreat eröffnet. Der Entwurf von Matteo Thun fügt sich harmonisch in die Umgebung ein. Gäste und Restaurantbesucher genießen hier einen der schönsten Plätze am See.
Nachhaltige Holzarchitektur
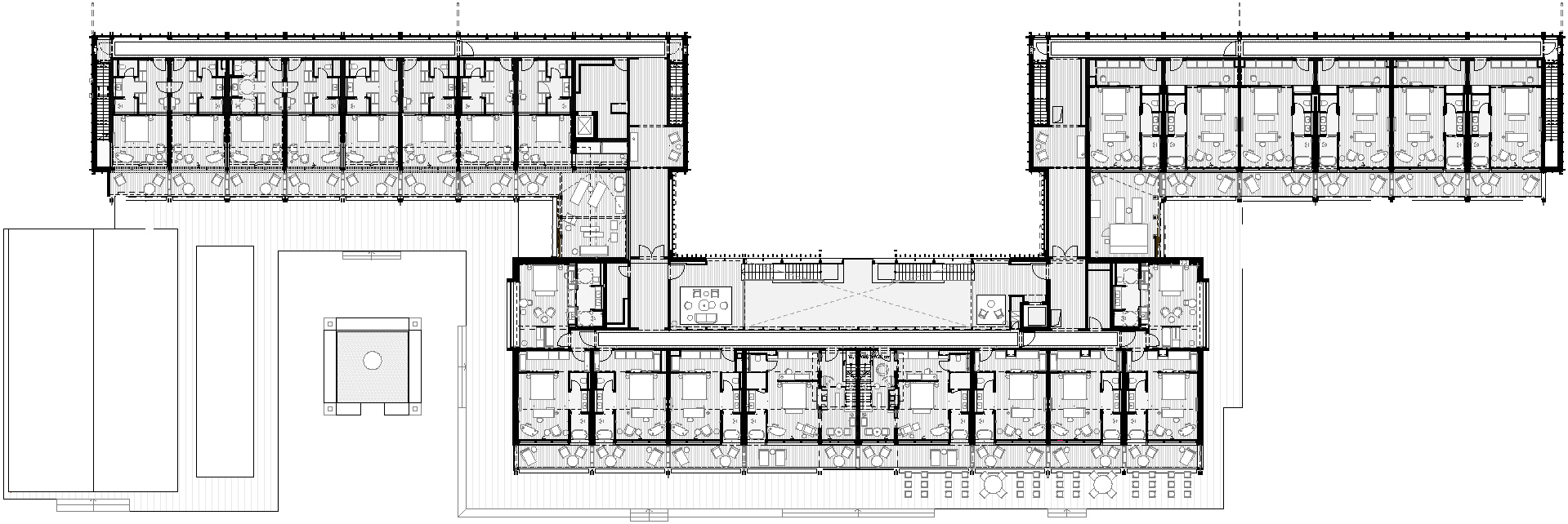
Das Hotel knüpft an die Tradition des ehemaligen Chiemgauhofs an und kombiniert den Charme historischer Holzscheunen mit zeitgemäßer Gestaltung. Die drei Holzgebäude erstrecken sich entlang des Sees und sind durch Terrassen und verglaste Elemente verbunden. Die 28 Zimmer und Suiten bieten Seeblick, Loggien sowie Highlights wie Panoramafenster, private Saunen oder kleine Gärten. Japanisch inspirierte Lärchenholzbadewannen mit Blick auf den See setzen besondere Akzente.


Blick in den zentralen Empfangsbereich: Die Treppe führt zu den Zimmern und Suiten. © Elias Hassos
Regionale Materialien & Handwerkskunst
Die Architektur basiert auf natürlichen Materialien wie gebürstete Lärche und Fichte sowie Naturstein, Glas und Marmor. Viele davon erzählen eine Geschichte aus dieser Gegend: So kommen die handgefertigten Kacheln der Kaminöfen von der Traditionsmanufaktur „Inseltöpferei Klampfleuthner“ auf der Fraueninsel. Außerdem sorgen geölte Eichendielen, handgewebte Teppiche und dunkler Naturstein in den Bädern für eine hochwertige, zeitlose Ästhetik.


Die durchgehend zu öffnende Fensterfassade und die umlaufende Lärchenholzterrasse bringen den See in greifbare Nähe. © Elias Hassos
Bootshaus als besonderes Highlight
Ein angrenzender Pavillon aus geflämmtem Holz dient als Veranstaltungsort und Rückzugsort. Direkt am See und am Pool gelegen, bietet er mit Kamin, Bar und Tearoom einen stimmungsvollen Rahmen für Feiern und Entspannung.
Architektur, Innenarchitektur: Matteo Thun & Partners
Standort: Julius-Exter-Promenade 21, 83236 Übersee (DE)










