Refugium für einen Designer
Bauernhof im Burgund
Das alte Bauernhaus öffnet sich mit deutlich größeren Fenstern nach außen als zuvor. Die charakteristische Natursteinarchitektur blieb jedoch erhalten. © Charles Petillon
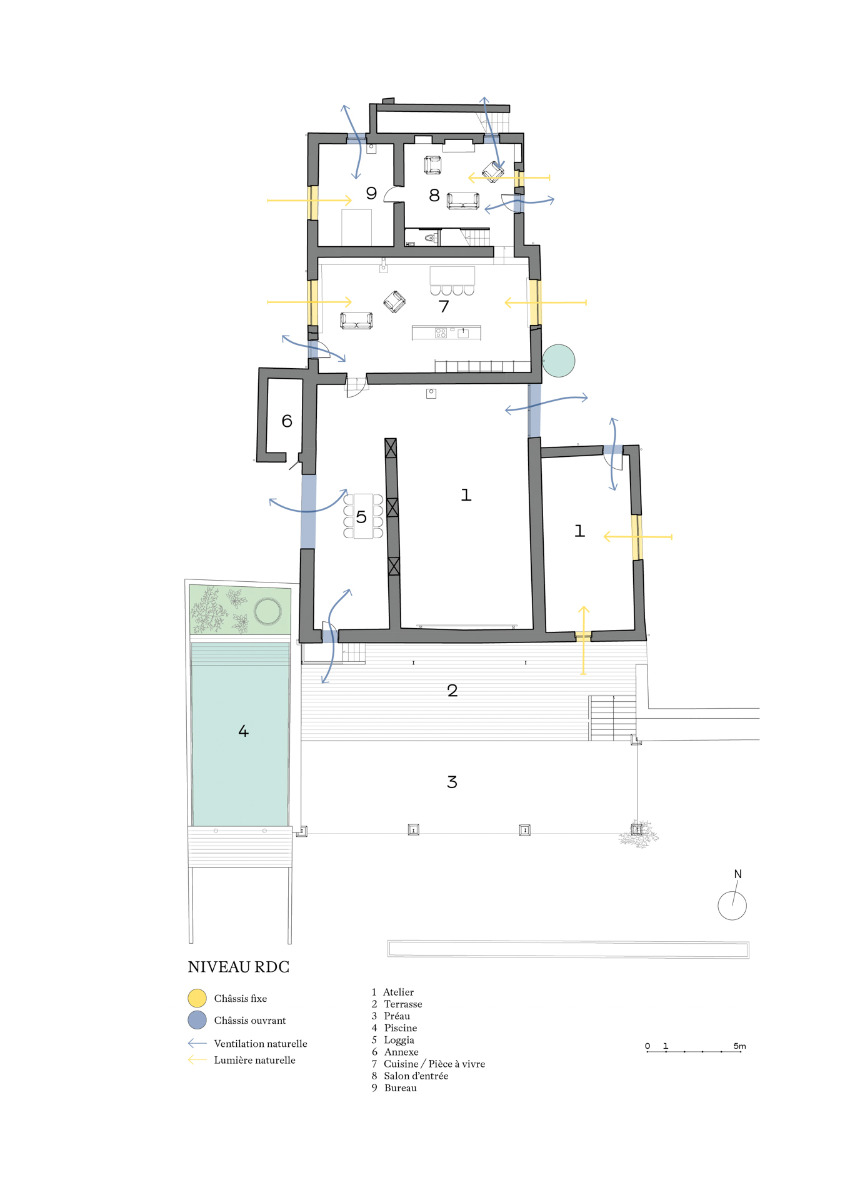
Das Beste an Erwan Bouroullecs neuem Zweitwohnsitz ist die Lage: Der ehemalige Bauernhof genießt ein nahezu perfektes 360-Grad-Rundumpanorama über die Wiesen und Wälder Burgunds. Doch um das heruntergekommene Gemäuer wieder bewohnbar zu machen, war einige Mühe erforderlich. Das Umnutzungskonzept, das Bouroulec gemeinsam mit Le Dévéhat Vuarnesson Architectes ausarbeitete, sah den Umbau einer Scheune zum Atelier und den Abriss der Stallgebäude zugunsten eines freien Blicks nach Süden vor. Der ursprüngliche Zauber der Natursteinarchitektur sollte jedoch erhalten bleiben.


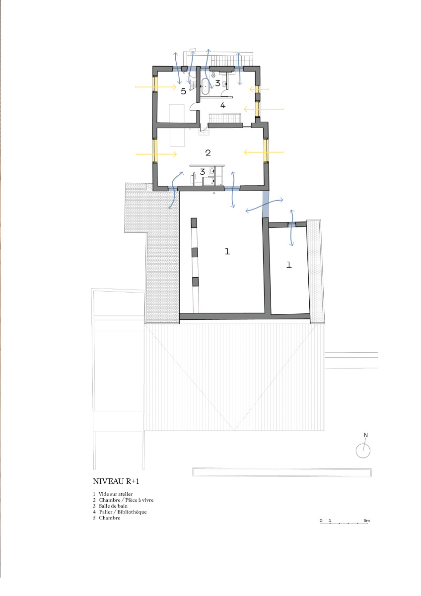
Aus den großen Gauben im Obergeschoss fällt der Blick weit über die Täler und Wälder Burgunds. © Philippe Thibault
Viel Licht dank neuer Fenster
Große Dachgauben bringen nun Licht in die Obergeschossräume. Ihre Fensterstürze bestehen aus alten Deckenbalken aus Eiche, die einem neuen Dachstuhl aus Douglasie weichen mussten. Das Dach wurde von außen mit Holzfasern gedämmt und alle alten Fenster zugunsten neuer, deutlich größerer Öffnungen mit Zweifachverglasung entfernt. Die alten Fußbodenfliesen aus Terrakotta dienen nun als Fensterbänke. Eine außen liegende Verschattung vor den Fenstern hält die Wohnung im Sommer kühl. Im Winter spenden Holzöfen und eine Fußbodenheizung Wärme.


Nicht überall ist erkennbar, was alt ist und was neu. Die Türstürze im Haus sind zum Beispiel aus alten Eichenbalken gefertigt, die einst das Dach trugen. © Philippe Thibault
Für Abkühlung sorgt ein Swimming-Pool
Das Wohnhaus und die Scheune erhielten eine neue Ziegeldeckung, und auch die Asbestdeckung der alten Ställe wurde zugunsten eines überdachten Mehrzweckbereichs entfernt. An einigen Stellen mussten die Architekten zusätzliche Zwischenebenen einfügen, um das Tragwerk zu stabilisieren. Der Workshop in der ehemaligen Scheune erhält nun Licht über ein großes Oberlicht. Im Sommer steht den Hausbewohnern ein Swimmingpool zur Verfügung, der in der ehemaligen Silagegrube südlich des Wohnhauses entstanden ist.
Architektur: Le Dévéhat Vuarnesson Architectes
Bauherr: Ève & Erwan Bouroullec, Thierry Lesage
Standort: Burgund (FR)






















